грузоподъемное оборудование кранбалки краны

ООО "Технекс" - Грузоподъемное оборудование под Ключ

Профессиональный монтаж подкрановых путей – гарантия надёжной и долгой службы любой 


грузоподъёмной системы.

ООО «Технекс» предлагает услуги по проектированию, изготовлению и монтажу подкрановых путей для подвесных и опорных кранов.

Устройства крановых путей включают:

1. Проектирование. Строительство путей для перемещения грузоподъемной техники всегда начинается с разработки проекта под конкретные условия. Как только мы получаем заявку либо техническое задание на монтаж крановых путей, наши специалисты приступают к работе. Уточняются детали и особенности объекта, рассчитывается проект, после чего сроки и условия исполнения заказа обсуждаются с клиентом.

2. Изготовление. Наше предприятие изготавливает и собирает промышленные металлоконструкции для подкрановых эстакад, а также другие металлоконструкции. Производственные мощности ООО «Технекс» расположены в г. Минск, на базе ООО «МЗОР». Производительность предприятия составляет около 35 тн. металлоконструкций в месяц. Достигается это благодаря хорошо налаженному производству, наличию квалифицированного персонала, отменной репутацией среди государственных и частных заказчиков. Большое внимание на предприятии уделяется технической оснащенности - благодаря сотрудничеству с ведущими производителями оборудования для обработки металла, постоянно приобретается новое оборудование и происходит обновление существующего. Соблюдение технологического процесса гарантирует высокое качество выпускаемой продукции. Особое внимание уделяется контролю качества на всех этапах изготовления изделий.

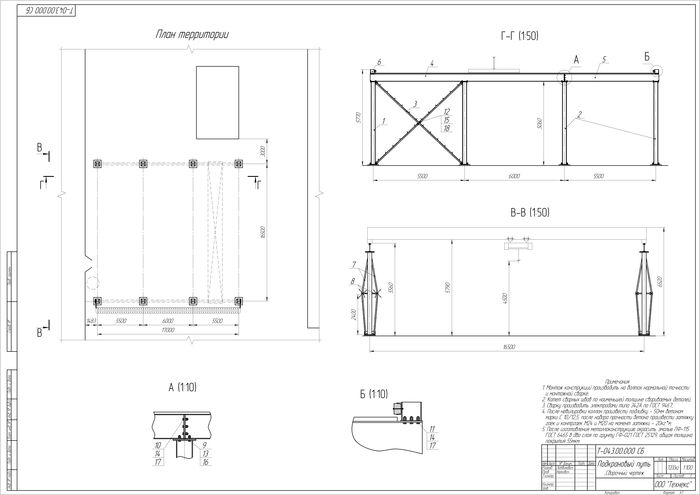
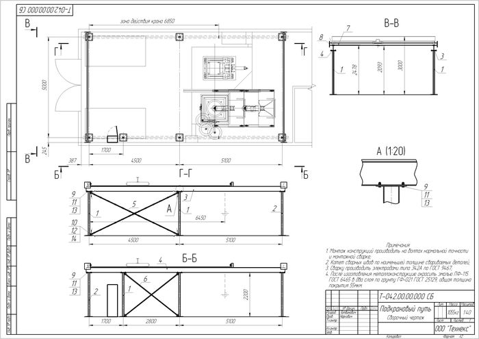
3. Монтаж подкрановых путей. Сегодня крановые пути монтируются как внутри промышленных цехов, так и на улице, на территории различных строительных объектов. Именно место установки, а также тип грузоподъёмного оборудования и определяют вариант конструкции. Надземные пути служат для передвижения исключительно консольных и мостовых кранов. Портальные и козловые крановые механизмы устанавливаются на рельсы наземного пути.

 

Для получения более подробной информации вы можете проконсультироваться у наших специалистов по телефонам:

Моб. МТС: +375 (29) 55-81-901, Тел/факс: +375-17-396-83-76

или отправить заявку на электронный адрес:  Адрес электронной почты защищен от спам-ботов. Для просмотра адреса в вашем браузере должен быть включен Javascript.

 

Наши работы:

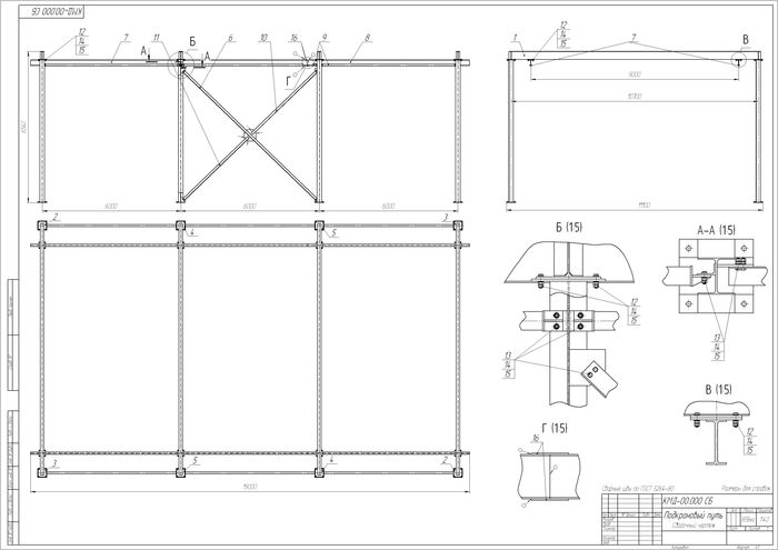
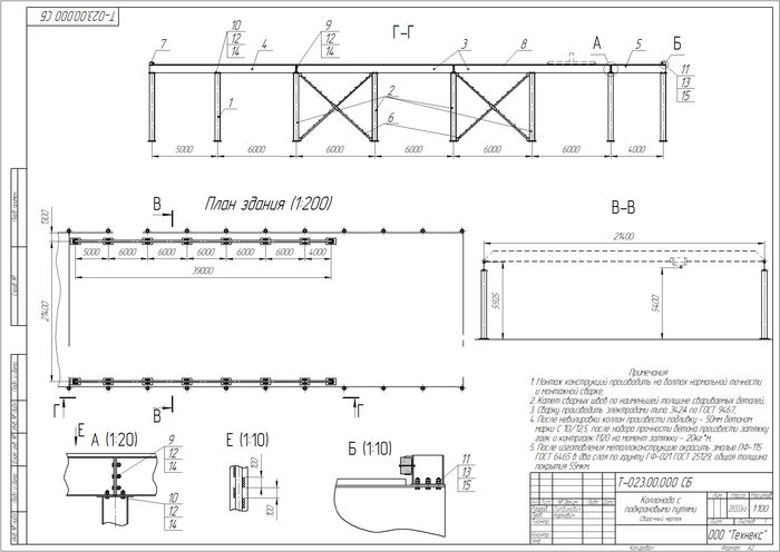
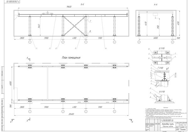
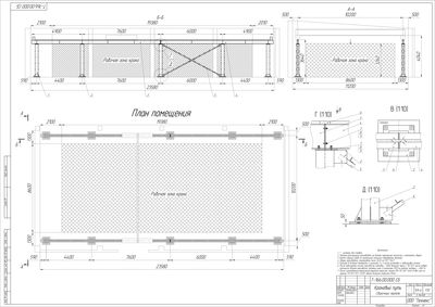
Проектирование, изготовление и монтаж подкрановой колоннады с опорным краном г/п 2 тонны (собственного производства).

   

 Проектирование, изготовление и монтаж подкрановой эстакады с подвесной кран балкой г/п 1 тонна (собственного производства).

 Проектирование, изготовление и монтаж подкрановой эстакады с краном мостовым опорным г/п 5 тонн (ABUS).

 

 Проектирование, изготовление и монтаж подкрановой эстакады с краном мостовым опорным г/п 1 тонна (собственного производства).

 Проектирование, изготовление и монтаж подкрановой эстакады с краном мостовым опорным г/п 5 тонн, пролет 16,5 метров.

 Проектирование, изготовление и монтаж подкрановой эстакады с краном мостовым опорным г/п 3,2 тонн, пролет 10,2 метра.

    

Радиоуправления TECHNEX

Первый импортер. Самые низкие цены в РБ. Скидки. Монтаж. Гарантия.         Подробнее

 

Поставка и монтаж двухбалочных кранов грузоподъемностью 16/5 т.

Подробнее...

Тали канатные электрические серии SHA8 (УСВ)

Грузоподъемность 3,2 тонны, 5,0 тонн, 6,3 тонны (в наличии на складе в Минске)

Высота подъема 9 метров

Уменьшенная строительная высота (УСВ)

Скорость подъема 5/0,8 м/мин (две скорости)

Скорость передвижения тали 20/5 м/мин (две скорости)

Ограничитель грузоподъемности (ОГП)

Радиоуправление (опция)

Отгружена очередная партия кранов собственного изготовления

Подробнее...
Copyright 2023 © ООО "Технекс"