грузоподъемное оборудование кранбалки краны

ООО "Технекс" - Грузоподъемное оборудование под Ключ

   В августе 2022 года в городе Могилев специалисты ООО «Технекс» закончили работы по сдаче в эксплуатацию крана мостового электрического опорного грузоподъемностью 3,2 тонны.

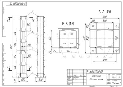
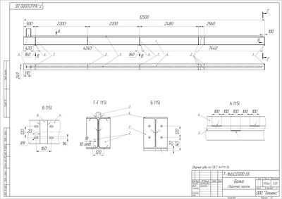
Начало работ происходило на стадии проектирования крана г/п 3,2 тонны, пролетом 10,2 метра и металлоконструкций подкрановой колоннады длинной 23,58 метра. После согласования проекта с заказчиком, были выполнены работы по изготовлению металлоконструкций подкрановой колоннады и крана мостового опорного.
Далее наши специалисты выехали на место и произвели работы по монтажу подкановой колоннады вместе с краном электрическим опорным. Так же были выполнены работы по пусконаладке крана, динамические и статические испытания.

              

Радиоуправления TECHNEX

Первый импортер. Самые низкие цены в РБ. Скидки. Монтаж. Гарантия.         Подробнее

 

Поставка и монтаж двухбалочных кранов грузоподъемностью 16/5 т.

Подробнее...

Тали канатные электрические серии SHA8 (УСВ)

Грузоподъемность 3,2 тонны, 5,0 тонн, 6,3 тонны (в наличии на складе в Минске)

Высота подъема 9 метров

Уменьшенная строительная высота (УСВ)

Скорость подъема 5/0,8 м/мин (две скорости)

Скорость передвижения тали 20/5 м/мин (две скорости)

Ограничитель грузоподъемности (ОГП)

Радиоуправление (опция)

Отгружена очередная партия кранов собственного изготовления

Подробнее...
Copyright 2023 © ООО "Технекс"